Наша цель - эффективно перепланировать и провести качественный ИНВЕСТремонт для получения максимальной прибыли от доходных студий
помещения на компактные доходные студии
1
Наши брокеры постоянно мониторят первичный и вторичный рынки в поиске недооценённых объектов недвижимости в хороших локациям, а специалист по работе с банковскими продуктами поможет получить ипотечное одобрение с минимальной субсидированной ставкой на весь срок
Подбор объекта и помощь в покупке
2
4
Что мы предлагаем
В течение нескольких недель приобретёте ликвидный объект с планировкой, наилучшим образом подходящей для деления на доходные студии, вложив при этом минимальную сумму собственных денежных средств (от 20%)
Результат
Запишитесь на консультацию прямо сейчас, чтобы узнать финансовый план и точные сроки проведения работ!
Для защиты капитала и исключения ошибок все работы проводятся согласно разработанных проектов: планировочные решения, техническая часть, а также дизайнерская в виде коллажей с подробной спецификацией материалов, мебели и техники. Перепланировку на самостоятельные студии настоятельно рекомендуем узаконить в соответствующих органах
Проектные работы и узаконивание перепланировки
Через 2-3 недели получаете полный пакет чертежей и спецификацию по принципу одного окна, что исключает трату времени на проверку соответствия дизайнерских решений техническим приёмам, которые используют проектировщики для повышения эффективности перепланировки. Процесс узаконивания проводится параллельно подготовительным работам на объекте для сокращения сроков завершения всех работ
Результат
Благодаря многолетнему опыту и высокой строительной экспертизе производим абсолютно все строительно-монтажные работы своими силами (черновые, инженерные, отделочные), организовывая заказ и поставку необходимых для производства работ материалов, а также вывоз строительного мусора с объекта
ИНВЕСТремонт по перепланировки помещения
Вам остаётся только ознакомиться и подписать договор подряда с графиком финансирования, своевременно вносить платежи и наблюдать за ходом производства работ благодаря еженедельные фото и видеоотчётам
Результат
После завершения строительно-отделочных работ закажем, организуем доставку, сборку и монтаж всей мебели и техники согласно утверждённого проекта. А хоумстрейджер «вдохнёт жизнь» в готовые студии для повышения загрузки и среднего чека аренды
Комплектация объекта и хоумстейджинг
Вам остаётся определиться как будете сдавать в аренду ваши доходные студии: самостоятельно или через УК. В случае выбора второго варианта – передадим по акту результат работ сторонней организации без вас!
Результат
Мы помогаем выжимать максимум из м²
3
Наша основная специализация
Расстановка мебели и сантехнических приборов
План демонтажа существующих перегородок
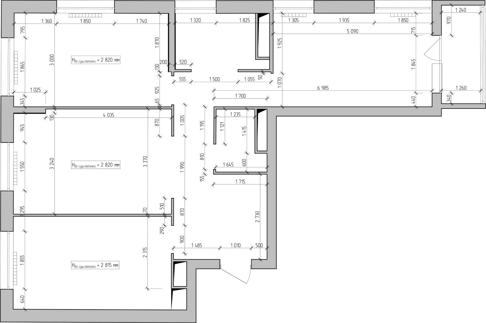
Обмерный план квартиры до деления на студии
Ипотека на 30 лет......................................................................
Нормандия, студия А
9,0%
Стоимость объекта.................................................
13 506 000₽
Первоначальный взнос 15%..............................
2 154 000₽
Ежемесячный платеж.....................................................
92 137₽
Нормандия, студия C
Проект и ремонт........................................................
5 540 000₽
Нормандия, студия B
Нормандия, студия E
Принцеп нашей работы
Нормандия, студия D
Стратегия: деление на компактные
студии + посуточная аренда
Артем Базыигин
Разбор на примере нашего клиента
Посмотрите и другие наши проекты
ЖК Level Амурская апартаменты 59,7 кв.м поделены на 3 студии
Клиент | Оксана Моцкевичене
Ежемесячный денежный поток - 140-150 тыс/руб; ROI - 15,1%
ЖК Гоголь парк - 6; квартира 42,3 кв.м поделена на 2 студии
Клиент | Владимир Петров
Ежемесячный денежный поток - 70-80 тыс. руб.; ROI - 13,1%
"Кублицкий" апартаменты 18,5 кв.м + антресоль 6 кв.
Клиент | Анна Мирошниченко
Прибыль за 4 месяца - 589 688 ₽
ROI - 69,6%
ЖК Рихард
квартира 37,7 кв.м поделена на 2 студии
Клиент | Юрий
Зиберов
Ежемесячный денежный поток - 90-100 т.р; ROI - 13,6%
ЖК Рихард квартира 41,5 кв.м поделена на 2 студии
Клиент | Юрий
Зиберов
Ежемесячный денежный поток - 90-100 тыс/руб; ROI - 13,5%
Почему нас
Все включено
От подбора объекта и проектирования до ИНВЕСТремонта и комплектации – мы берём на себя все этапы, чтобы вам не пришлось беспокоиться о деталях
Профессионально и качественно
Наш опыт и команда позволили выстроить все процессы, существенно сократив время, но не жертвуя при этом качеством
Эффективно и оперативно
Предоставляем полный сервис по принципу одного окна, выдавая готовый ликвидный продукт – доходные студии
Абсолютно пассивно
Забудьте про беготню по организациям и бесконечные звонки с целью организации всех подрядчиков: мы несём всю ответственность, чтобы вы могли заниматься своими делами, а в конце - насладиться результатом
Обращайтесь к нам для эффективной перепланировки помещения и проведения ИНВЕСТремонта под ключ!
Консультация
выбирают?
Наша команда
СЕО-проекта и руководитель
Брокер по подбору ликвидных объектов
Ипотечный брокер
Юрист
Маркетолог
Проектная и дизайн-студия
Специалист по узакониванию перепланировок
Снабженец
Производители работ
Бригады отделочников, электриков, сантехников и подсобных рабочих
Как мы работаем
Оставьте свои данные и мы свяжемся с вами, чтобы познакомиться и дать ответы на все ваши вопросы
Нажимая кнопку "Получить консультацию" Вы соглашаетесь с политикой обработки персональных данных
2001-2024
Копирование и использование данных без разрешения правообладателя запрещено.
+7-913-4028-777
sem_development@mail.ru
инвестиционная недвижимость
Амурская, студия A
Амурская, студия B
Амурская, студия C
Гоголь Парк, студия A
Гоголь Парк, студия B
Зорге, студия A
Зорге, студия B
Студия А
Студия Б